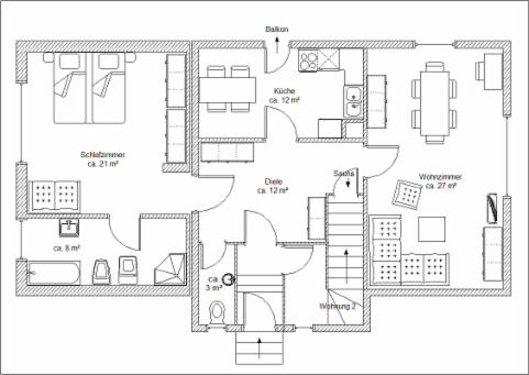
Ferienwohnung 1 - Erdgeschoss
Komfortabel wohnen Sie in unserer großzügigen und exlusiv eingerichteten Ferienwohnung 1. Auf rund 80 qm bieten wir Ihnen alles Gute für einen angenehmen Urlaub.
Wohn-, Esszimmer mit HD-TV (Kabel), Blue-ray DVD-Player, Radio, CD-Player.
Esstisch ausziehbar für bis zu 8 Personen.
U
Voll eingerichtete Landhausküche mit gemütlicher Essecke: Herd mit Ceranfeld, Backofen, Kühlschrank, Spülmaschine, Kaffeemaschine, Wasserkocher, Toaster und ...
... ein schönes Extra: Balkon mit Platz für 4 Personen vor der Küche.
Schlafzimmer mit Doppelbett (Liegefläche Einzelbett 1 m x 2 m) und Schlafsofa (Liegefläche 1,40 m x 2 m).
Schlafsofa im Wohnzimmer für bis zu 2 Personen (Liegefläche 1,60 m x 2m).
Be
Badezimmer mit Wannenbad, Dusche, Bidet und WC, Fön
(erreichbar über das Schlafzimmer).
Gäste WC (erreichbar über den Flur).

Grundriss Ferienwohnung 1
Unser Service für Sie:
W-LAN inclusive
Kostenfreier Stellplatz für ein Auto vorhanden
Kinderbett (mit Kissen und Decke) und Kinderstuhl auf Anfrage vorhanden
Unser Extra für Sie:
Gäste der Ferienwohnung 1 können für die Dauer ihres Aufenthaltes die hauseigene Sauna mit Ruheraum buchen (Preis siehe Liste).